Site Logo

Coupeville Boys and Girls Club given $1 million from state budget

Published 1:30 am Tuesday, May 25, 2021

A rendering of the new Coupeville Boys and Girls Club building shows what it will look like from the outside after construction. (Photo courtesy of the Boys and Girls Club)
1/4
A rendering of the new Coupeville Boys and Girls Club building shows what it will look like from the outside after construction. (Photo courtesy of the Boys and Girls Club)
Image courtesy of the Boys and Girls Club
A rendering of the new Coupeville Boys and Girls Club building shows what it will look like after construction.
Boys and Girls Club members are crowded in their current space at the old Coupeville fire station. (Photo courtesy of the Boys and Girls Club)
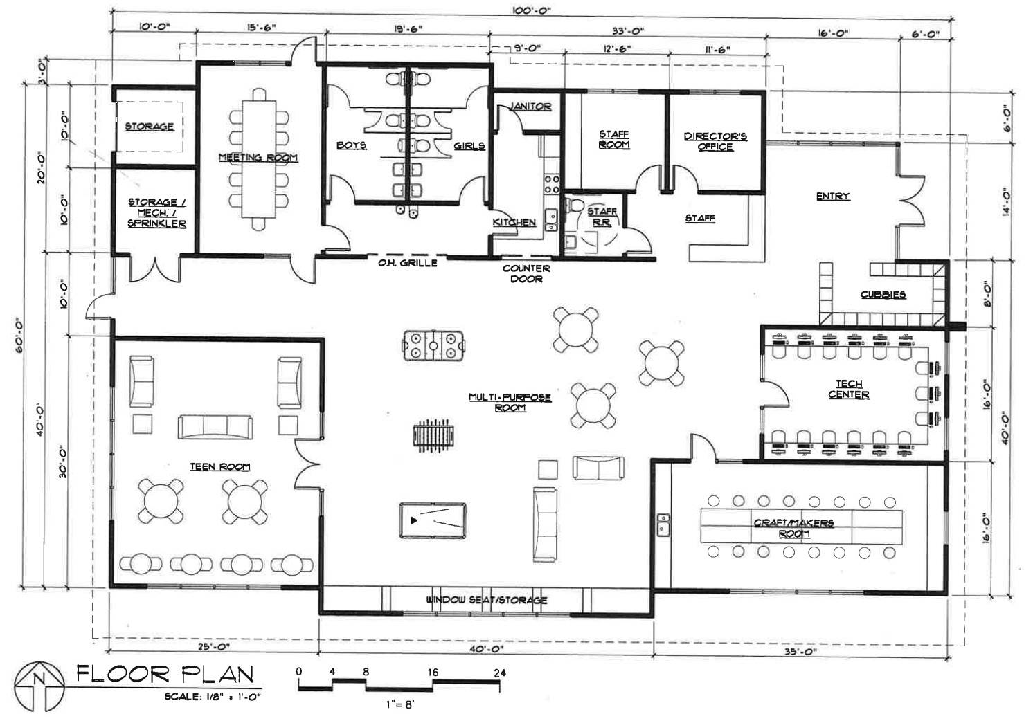
The floor plan shows the new club building will be much better suited to the club’s various functions and members’ needs. (Photo courtesy of the Boys and Girls Club)

The state legislature allotted the Coupeville Boys and Girls Club more than $1 million in the 2021-23 capital budget to construct a new building.

Since its establishment in 2005, the Coupeville Boys and Girls club has been operating out of the former Coupeville fire station, a cramped space they lease from the Catholic church and share with Gifts from the Heart Food Bank. A steady rise in membership numbers in recent years has rendered the space insufficient for the club’s needs.

Bill Tsoukalas, executive director of Snohomish and Island Counties’ Boys and Girls Clubs, said the new building will be large enough to accommodate the club’s growing numbers. Club leaders will even be able to start a teen program, something they haven’t done yet for lack of space in the old fire station. The new building will also have more bathrooms, a kitchenette, outdoor ballfields and, eventually, a gym.

This new club building has been years in the making. In 2016, the Unity Center for Positive Living donated 3.7 acres to the Boys and Girls Club to build on. The property, at 706 S. Main St. in Coupeville, provides plenty of space for the kids. Also, it is on the same side of Highway 20 as Coupeville Elementary and Midddle School, an easier and safer walk for kids between the two locations.

Acquiring the land was just the first step. Construction itself will be very expensive, and Boys and Girls Club administrators had their work cut out for them coming up with the funds for the building.

By approaching local donors, Tsoukalas said they managed to raise about $100,000 — an impressive amount, but barely enough to make a dent in estimated project costs.

In 2019, the club turned to the state legislature, which responded to the club’s appeals by granting it $824,000 in the two-year capital budget. Tsoukalas said the club will use this money to cover the cost of site preparation.

This year, the state legislature made another significant allotment to the club — $1.03 million to cover construction.

“It’s kind of the last piece of the puzzle that we need to build,” Tsoukalas said.

Carmen McFadyen, a Coupeville resident who helped get the local Boys and Girls Club up and running in 2005, helped lobby the state legislature for the funds. She said she has known House Capital Budget Committee member Rep. Mike Steele, R-Chelan, since he was a child, so when she heard about the club’s funding needs, she reached out to him.

“We really, really, really need this building,” she recalled telling Steele. McFadyen described herself as a “real advocate” for the club, which provides before- and after-school child care, and recreational and community-building opportunities for children and teens.

McFadyen said she also helped talk up the club and the building around town to help secure local donations.

Once the building is completed, Tsoukalas said the $100,000 of local donations will go toward internal furnishings and fixtures.

The Boys and Girls Club will break ground for the new building later this summer.